Monteguiduccio, Montefelcino, Pesaro e Urbino, 61030, Italia
€185,000

















Casale abbinato sito nelle colline attorno a Urbino tra Il Parco delle Cesane e Alce Nero, nella frazione di Monteguiduccio e non lontano dalle terme di Petriano.
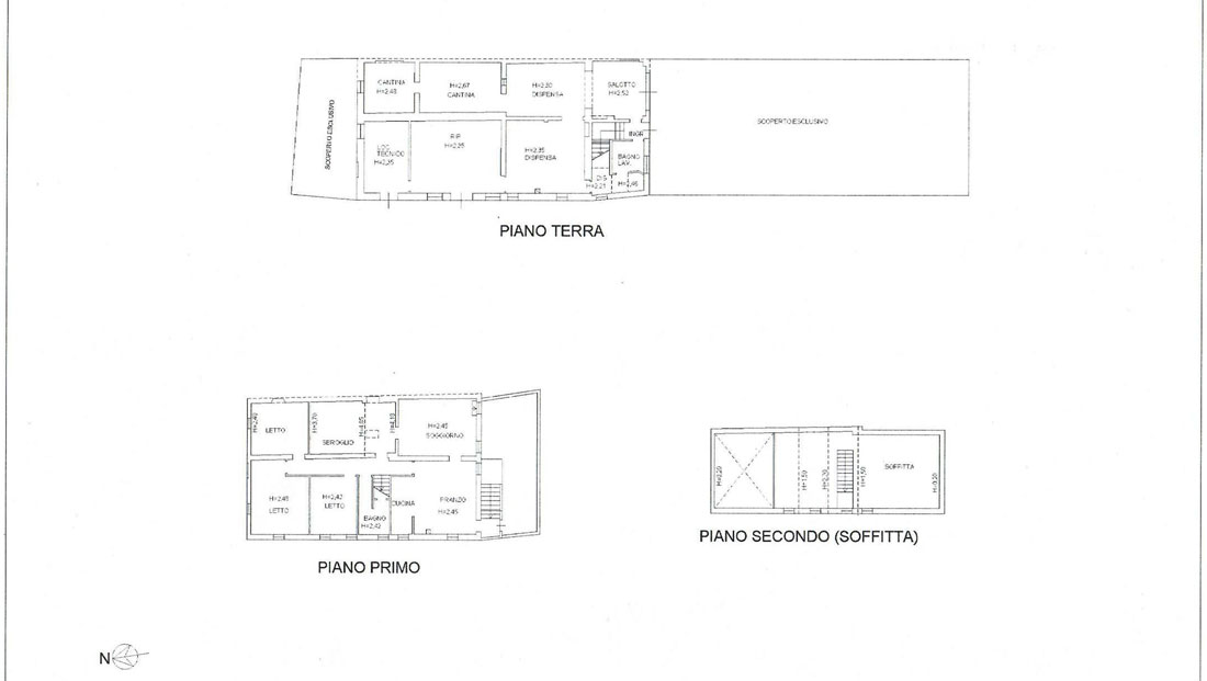
Per un totale di 356 mq su due piani con piccola terrazza, corte esterna recintata e lotto di terra alberato di 4000 mq anch’esso recintato con accessorio agricolo di 28 mq.
La casa ha un totale di 9 vani ed è così suddivisa: al primo piano ci sono 3 camere da letto, un bagno con doccia, cucina con sala pranzo e un salotto più un grande ripostiglio . Al piano terra troviamo un salotto, un bagno con zona lavanderia separata, cantina e dispensa. C’è anche una soffitta. La proprietà è posizionata a sud-ovest in una zona molto tranquilla a 2Km dal paese di Monteguiduccio.
Dettagli: la recinzione è esistente in tutto il perimetro dei giardini. Perché ce ne sono due: uno davanti alla cucina e l’altro, più grande di 4000 mq, con tanti alberi e accessorio agricolo che vede in foto. Anche quello grande di giardino è tutto recintato.
Gli infissi sono in PVC color legno. Sono nuovi, in doppio vetro, con zanzariera.
Riscaldamento : c’è l’impianto con i termosifoni con caldaia a GPL, più tre stufe a pellet, uno al piano terra e le altre due al primo piano. Più due camini uno al primo piano e l’altro al secondo piano.
Tetto nuovo con isolamento, rifatto tutto completamente come si fa nella maniera solita: coppi nuovi sotto, e quelli vecchi, più romantici, sopra.
Si lascia tutto l’arredamento, se si vuole, altrimenti viene portato via.
Siamo nelle famosa zona dove è nato il biologico e il concetto filosofico di un’agricoltura che segue i dettami della natura senza violentarla; sono questi i luoghi dove Gino Girolomoni inventò “Alce Nero” e ricostruì il Monastero di Montebello.
E’ la torre del Castello di Staffolo, con una…
€330,000
Tra Osimo e Filottrano, nelle vicinanze della bellissima Villa Spada…
Trattative riservate
Casale Collina
Owning a home is a keystone of wealth… both financial affluence and emotional security.
Suze Orman