Jesi, Ancona, Marche, 60035, Italia
€1,500











































In Jesi, im Herzen der Marken, bieten wir Ihnen in einer repräsentativen Patriziervilla in ländlicher Umgebung rund um die Königsstadt diese wunderschöne Wohnung im dritten Stock (auf Wunsch mit Aufzug) mit Zugang zu einem Park und einem Swimmingpool an.
Die Wohnung wird möbliert und mit einer Küche vermietet.
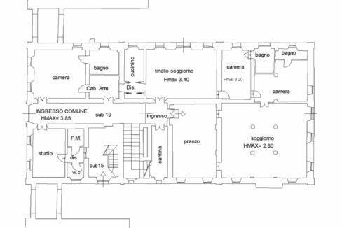
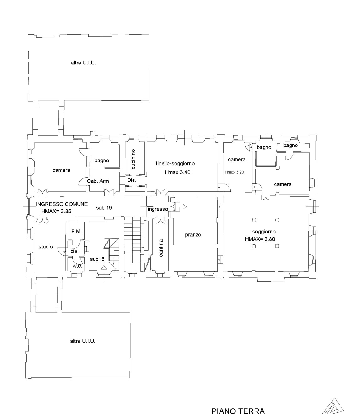
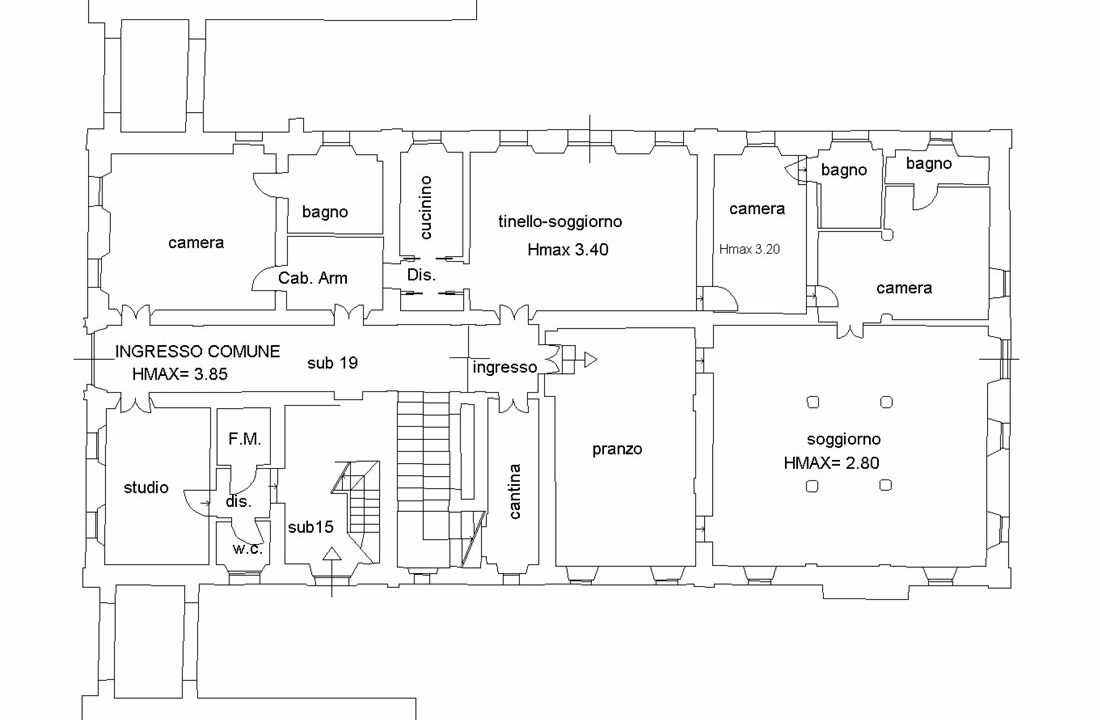
Sie erstreckt sich über 430 Quadratmeter auf einer Ebene und verfügt über vier Schlafzimmer, vier Badezimmer, eine Küche mit Kochnische, ein Esszimmer und ein Wohnzimmer.
Das Wohnzimmer ist mit einem Kamin ausgestattet.
Die Wohnung wird mit Flüssiggas beheizt.
Im Preis inbegriffen ist die Nutzung des Swimmingpools und des 1,5 Hektar großen, umzäunten Parks.
Außenparkplätze sind vorhanden.
Es gibt nur einen weiteren Mieter in der Villa.
Die Villa verfügt über einen Hausmeister und ist daher nicht abgelegen.
Dies ist eine sehr ruhige und einzigartige Wohnanlage.
Das Stadtzentrum von Jesi ist ca. 7 km entfernt.
Die Autobahn Ancona-Rom ist nur 1 km entfernt.
Der Flughafen ist ca. 18 km entfernt.
Mietvertrag über 18 Monate, verlängerbar bei Zahlung von 3 Monatsmieten im Voraus.
Zum Anwesen gehört außerdem eine kleine Kirche.
Es handelt sich um ein halbes Bauernhaus, da das Gebäude…
€225,000
Bauernhaus mit Reitstall in traumhafter Lage zwischen Cingoli und Filottrano…
€650,000
Casale tra i monti
Owning a home is a keystone of wealth… both financial affluence and emotional security.
Suze Orman