Villa Commenda
Villa Commenda in Montecassiano was renovated in 2015 The renovation…
Private Negotiations
Senigallia, Ancona, Marche, 60019, Italia
€1,850,000

















Some farmhouses seem to inscribe a modern signature in the renewed tradition of rural architecture. This is the case of this property, located on the crest of a hill with a wonderful view, just a few kilometres from the Adriatic Sea and the town of Senigallia, to which it belongs administratively and from which it is about 10 km away.
Surrounded by an enclosed garden of almost two hectares, the property includes a farmhouse built in exposed brick, completely renovated in compliance with anti-seismic standards, with a floor area of 370 sqm; a carport with a 15‑kW photovoltaic system installed on its roof; a swimming pool measuring 16 x 5 metres; and an ornamental pond full of delightful water lilies, originally created to irrigate the large lawn of approximately 5,000 sqm.
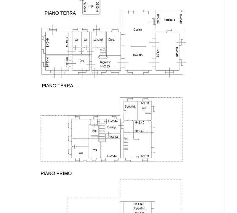
The farmhouse, with a total area of 370 sqm on two floors, is arranged as follows.
Ground floor: Entrance hall, study with bookshelves, bedroom with bathroom, laundry room, spacious kitchen with a magnificent Aga, living room and panoramic veranda, small sitting room with fireplace.
First floor: Two bedrooms with en‑suite bathrooms and a third master suite with walk‑in wardrobe, bathroom, and wood‑burning stove.
Resin flooring, underfloor heating, cooling system with heat pump, storage boiler, and video surveillance.
Land area of 19,000 sqm with automatic irrigation system.
Energy class A – 30 kWh/sqm.
Villa Commenda in Montecassiano was renovated in 2015 The renovation…
Private Negotiations
Palazzo Castiglioni
Owning a home is a keystone of wealth… both financial affluence and emotional security.
Suze Orman